Leave a Message

Thank you for your message. We will be in touch with you shortly.

Connie Dornan

Founder | Lead Broker

Connie Dornan epitomizes hard work, integrity and personalized service in every aspect of her real estate transactions. A native of the Northside, ...

Request Info

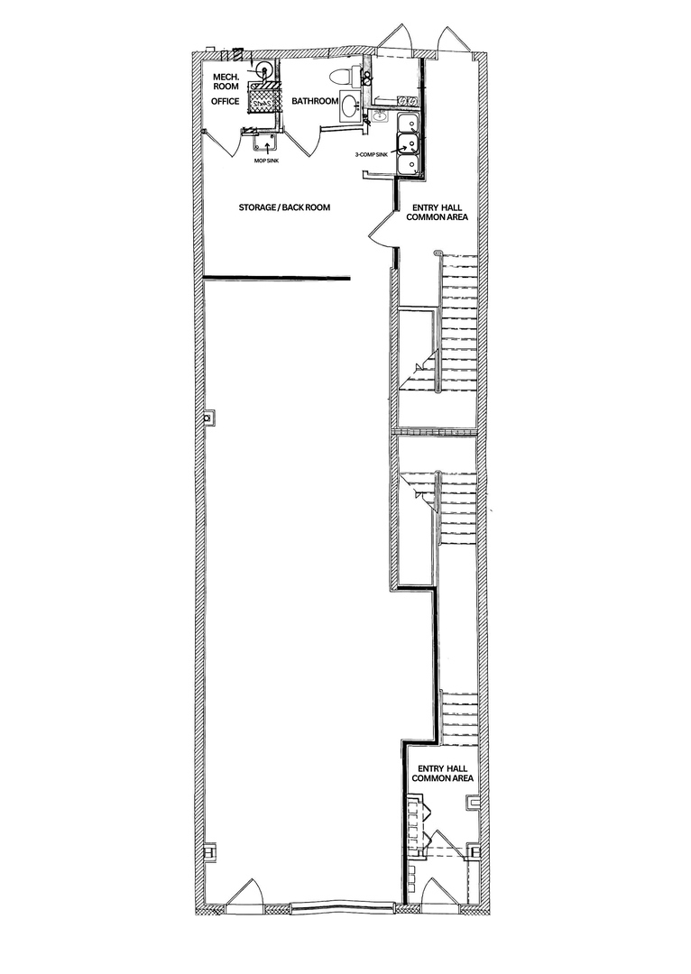
1402 W Grand Avenue Unit: 1

1402 W Grand Avenue Unit: 1, Chicago, IL 60642

Excellent Opportunity to own an established wine/liquor & pantry with Real Estate in Prime Corner Location in West Town! Stop Light / NWC on Busy Grand Avenue with daily traffic counts near 9,000. The Space itself is a 1,228 SF commercial condo with 12 foot ceilings, Central Air, and set up as a vanilla box with a dividing wall in back area for storage, sinks, and bathroom. The location has been the same concept for 15+ years with Green Grocer kicking off and Isabel's Wine Cellar & Pantry rounding out the last 5. Liquor License in place / Name + FF&E included in the asking price. Inventory can be purchased / negotiated. For more information on Financials, Ages of Mechanicals, etc- please reach out directly to Co-List Agent.

Features & Amenities

Exterior

Stories 1
Utilities Natural Gas Available
Air Conditioning Central Air, Window Unit(s)

Area & Lot

Status Sold
LIVING SPACE 1,228 Sq.Ft.
TOTAL AREA 1,228 Sq.Ft.
MLS® ID 12277172
Type Commercial

Financial

SALES PRICE $290,000
REAL ESTATE TAXES $11,517/yr
Zoning COMMR